- マドリーHOME
- 間取り一覧
間取り一覧
家族や自分の”好き”を叶える注文住宅の間取りが見つかる!暮らしの要望をもとに全国の建築家が作成した間取りを1916件公開しています。毎日更新中!
-
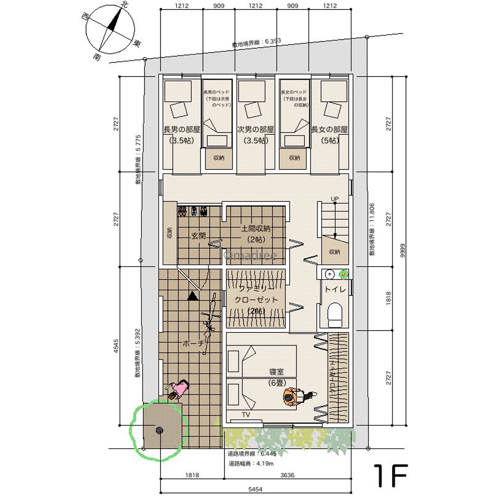
- 40坪
- 3LDK
キッチン中心の回遊動線で、家族で料理し会話弾む家
-
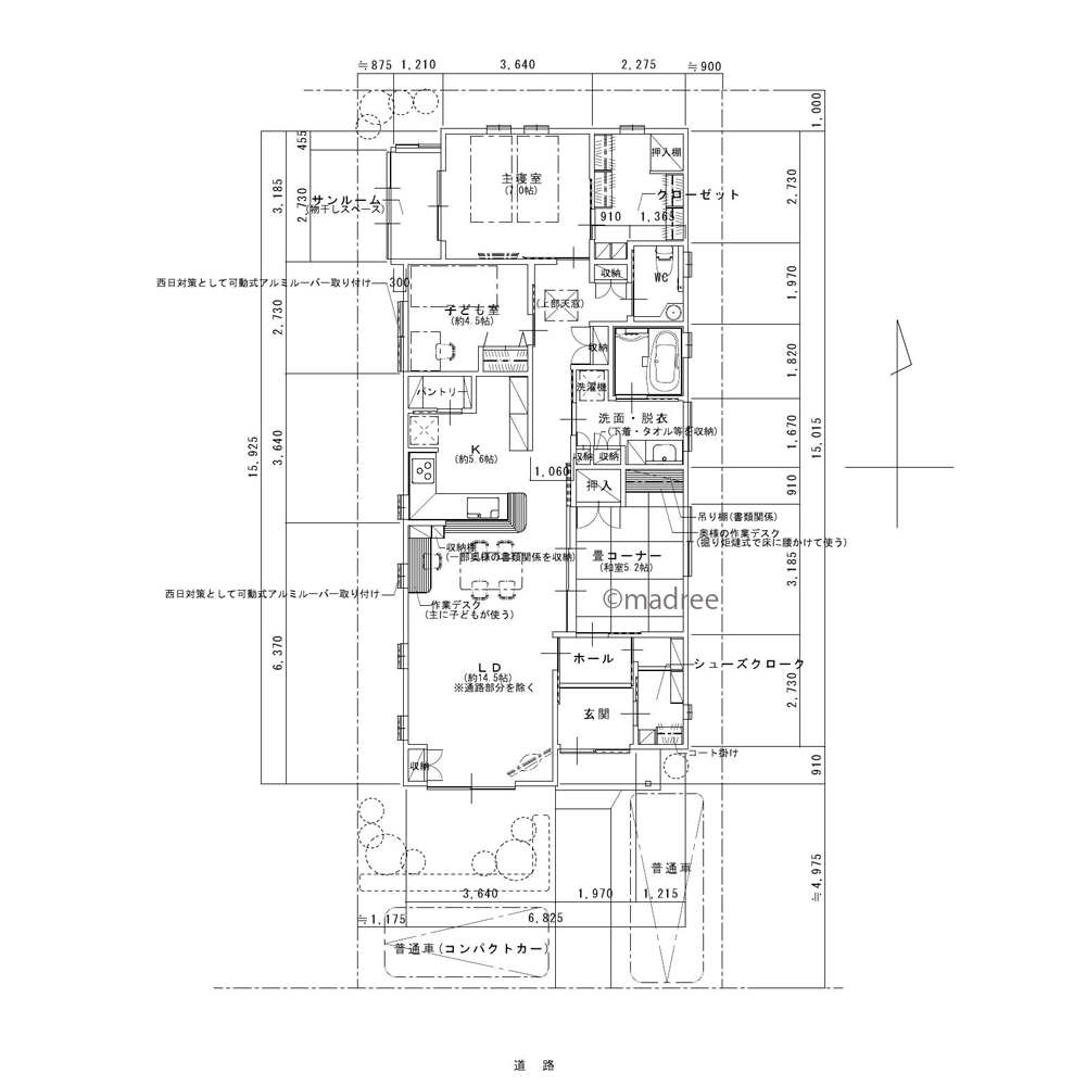
- 42坪
- 5LDK
大収納ですっきり片付く、おうちカフェで特別な時間味わう家
-
- 26坪
- ロフト
身体の負担を減らすシンプルな家事動線、リタイア後の暮らしを愉しむ平屋の終の棲家
-
マドリーの人気間取りを接客・提案に活用できる営業支援ツール
-
- 41坪
- 4LDK
中庭デッキでプライバシー確保、治療院兼用の家
-
- 39坪
- 4LDK
回遊キッチンを囲んで家族団欒、室内プライバシー確保した平屋
-
- 42坪
- 4LDK
収納力高くスッキリ片付く、南向きで明るく東西に細長い家
-
- 34坪
- 5LDK
中庭から心地よい光差し込み、プライバシー充実した家
-
- 61坪
- 4LDK
プライベートは隠しておもてなしする家
-
- 36坪
- 3LDK
行き止まりのない回遊動線で家事ラクな家
-
- 50坪
- パントリー
1階リビングが憩いの場、玄関共有の二世帯住宅
-
- 46坪
- 4LDK
2階で家事完結、治療院兼自宅
-
- 50坪
- 4LDK
共働き夫婦が、車椅子の両親と同居する平屋の二世帯住宅
-
マドリーの人気間取りを接客・提案に活用できる営業支援ツール
-
- 38坪
- 3LDK
ゾーン分けした中庭からの光が心地よい、自宅兼店舗の平屋
-
- 50坪
- 4LDK
介護を必要とする両親と、ストレスフリーに暮らす平屋の二世帯住宅
-
- 39坪
- 4LDK
家事動線がよく、プライバシーを確保できる平屋
-
- 37坪
- 3LDK
壁際ベンチで会話弾む、便利な2WAY動線の家
-
- 26坪
- 3LDK
家族で楽しめる庭と、ほっと落ち着くリビングの平屋
-
- 39坪
- 5LDK
中庭から光取り込む北側リビングで、眺め生かした高台の家
-
- 32坪
- 3LDK
生活動線をわけ、プライバシーと日照を確保した平屋
-
- 27坪
- ロフト
キッチン中心の便利な生活動線で、遊び心のある平屋の終いの棲家
-
- 30坪
- 4LDK
廊下なし回遊動線の2階リビングで、狭小地と感じない工夫ある家
-
- 40坪
- 6LDK
リビングに3世代が集う、採光工夫した旗竿地に建つ二世帯住宅
マドリー開発の『住宅営業支援ツール』
madreeデータバンク
マドリーの人気間取り4,800プランを接客・提案に活用できる営業支援ツール
- 競合他社と差がつく、スピード提案
- トレンド間取りで、集客・受注数UP
- 建築家のアイデアを参考に、質の高い提案ができる
