セカンドリビングの間取り一覧
家族や自分の”好き”を叶える注文住宅の間取りが見つかる!暮らしの要望をもとに全国の建築家が作成したセカンドリビングの間取りを209件公開しています。毎日更新中!
-
- 37坪
- 4LDK
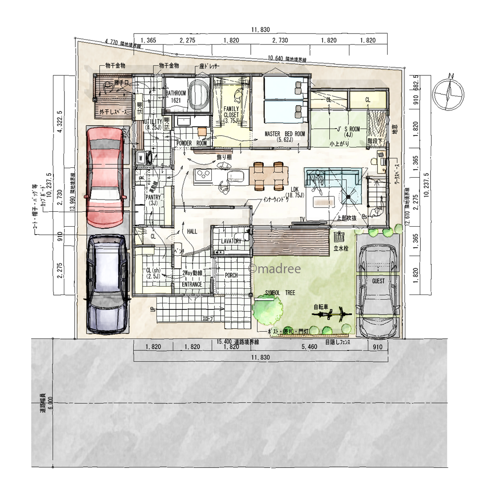
お洒落にインテリアを楽しむ、引き戸で繋がり回遊できる楽家事動線の家
-
- 31坪
- 3LDK
通風と採光確保の縦長リビングで、帰宅後洗面所まで一直線の家
-
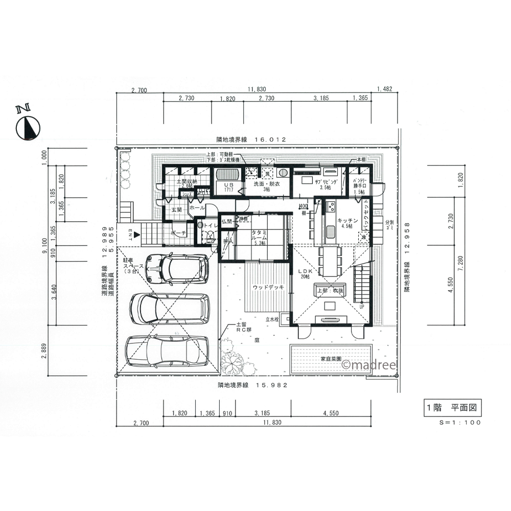
- 50坪
- 4LDK
梁見せ天井で木のぬくもりを感じる、介護しやすいゆったり平屋の二世帯住宅
-
- 36坪
- 3LDK
生活音気にせずやすらぎ確保、1階でほぼ完結するリビング中心の家
-
- 35坪
- 4LDK
吹抜から家族を感じる、2階リビングのある家
-
- 40坪
- 6LDK
大きな吹抜で光呼び込む、採光と風通し良いL字型の家
-
- 40坪
- 3LDK
キッチン中心の回遊動線で、家族で料理し会話弾む家
-
- 42坪
- 5LDK
大収納ですっきり片付く、おうちカフェで特別な時間味わう家
-
- 61坪
- 4LDK
プライベートは隠しておもてなしする家
-
- 50坪
- 4LDK
共働き夫婦が、車椅子の両親と同居する平屋の二世帯住宅
-
- 40坪
- 4LDK
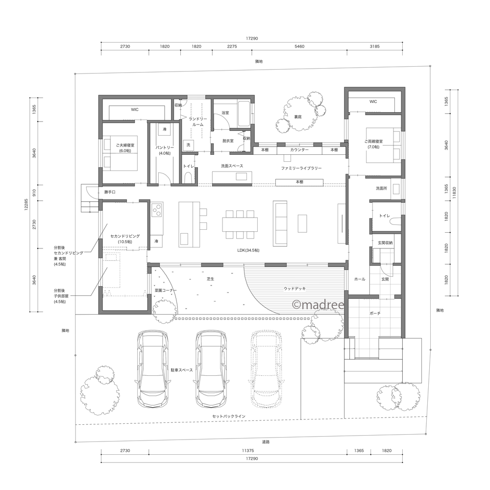
変形地を有効活用、複数リビングで愉しい平屋
-
- 42坪
- 5LDK
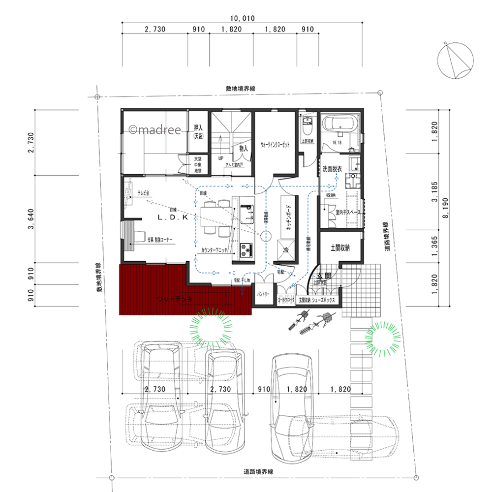
機能的なサニタリースペースで自宅サロン併用の家
-
- 35坪
- 3LDK
1階でほぼ完結、ファミリースペースで趣味楽しむ家
-
- 50坪
- 3LDK
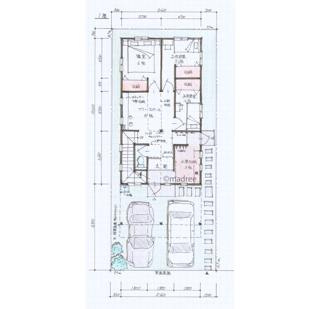
ストレスフリー介護で家庭円満、明るいリビングに3世代集う平屋の二世帯住宅
-
- 36坪
- 4LDK
南向き吹抜が親子をつなぐ、2WAY玄関のある家
-
- 39坪
- 4LDK
プライバシーに配慮した、中庭がある平屋
-
- 37坪
- 6LDK
リビング続きのウッドデッキで、家族のコミュニケーション増える家
マドリー開発の『住宅営業支援ツール』
madreeデータバンク
マドリーの人気間取り4,800プランを接客・提案に活用できる営業支援ツール
- 競合他社と差がつく、スピード提案
- トレンド間取りで、集客・受注数UP
- 建築家のアイデアを参考に、質の高い提案ができる
