38坪の間取り一覧
家族や自分の”好き”を叶える注文住宅の間取りが見つかる!暮らしの要望をもとに全国の建築家が作成した38坪の間取りを92件公開しています。毎日更新中!
-
- 38坪
- 2LDK
カーテンなしでオープンに暮らす、自慢の吹抜プライベートテラスで特別感に浸る家
-
- 38坪
- 3LDK
繋がる空間で家族を近くに感じる、趣味にも仕事にも活躍するスキップフロアのある家
-
- 38坪
- 5LDK
仕事とプライベートを空間で切り替え、来客と動線の交わらないサロン併用の家
-
- 38坪
- 5LDK
庭の緑と光をたっぷり取り込み、のびのび過ごせる耐震性に優れた家
-
- 38坪
- 5LDK
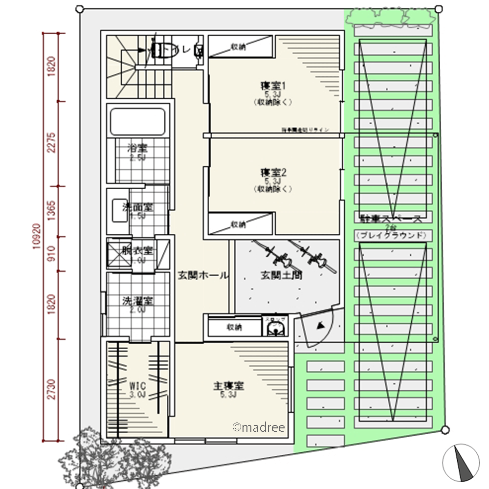
エアコンがなくても風通し良好、アルコーブでのプライベート時間を楽しむ二世帯住宅
-
- 38坪
- 5LDK
生活空間をさっと仕切り目隠し、気軽に人を呼べるおもてなし上手の家
-
- 38坪
- 4LDK
中庭につづく土間と吹抜が開放感生み出す、おしゃれに魅せる上手な空間使いの家
-
- 38坪
- 3LDK
少ない廊下で空間を有効活用、階段中心の回遊動線で家事がコンパクトに繋がる家
-
- 38坪
- 3LDK
愛犬と一緒にアウトドア楽しむ、将来同居を見据えた二世帯住宅
-
- 38坪
- 5LDK
充実した帰宅動線と適材適所の収納で、散らかりにくいワーママ応援の家
-
- 38坪
- 5LDK
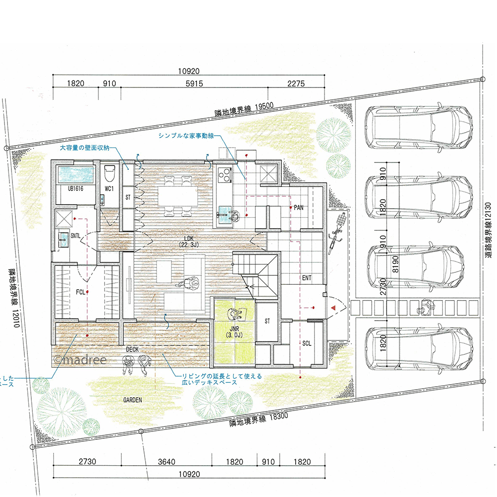
縦横広がる大空間リビングで家族憩う、隣家の視線カットしたコの字の家
-
- 38坪
- 3LDK
寝室から繋がる水廻りでサクサク朝支度、光と風が心地良い2階リビングの家
-
- 38坪
- 3LDK
太陽の光と空気をたっぷり浴びる、緑に囲まれたアウトドア派の二世帯住宅
-
- 38坪
- 3LDK
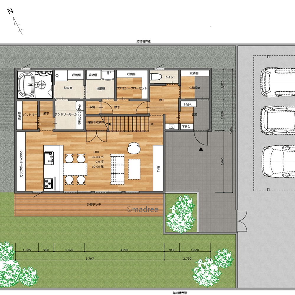
料理動線と洗濯動線を完全に分けて、家事分担が楽にできる共働きに嬉しい家
-
- 38坪
- 4LDK
荷物も花粉も持ち込まない、LDK前の身支度動線で自然とスッキリ整う家
-
- 38坪
- 4LDK
家族で趣味を楽しむ空間が点在、休日もステイホームしたくなる家
-
- 38坪
- 4LDK
家族も猫ものびのび過ごす、内外一体のアウトドア好きの家
-
- 38坪
- 4LDK
2種類のシンプル動線で家事楽らく、横長LDKを気持ち良く風が抜ける家
-
- 38坪
- 3LDK
リビング吹抜が家族を繋ぐ、2階からそっと見守る書斎スペースのある家
-
- 38坪
- 4LDK
裏動線に家事をまとめてリビングはすっきり、家族各々のプライベートも重視した家
-
- 38坪
- 4LDK
座れる休める収納できる、小上がり畳の便利な階段踊り場がある家
-
- 38坪
- 4LDK
包まれるような安心感、ピットリビングでLDK空間に変化をつけた家
-
- 38坪
- 2LDK
キッチンからのコンパクト動線で、複数の家事をスムーズにこなす家
-
- 38坪
- 3LDK
キッチン中心ぐるぐる動線で生活向上、4兄妹が集う子どもリビングのある家
マドリー開発の『住宅営業支援ツール』
madreeデータバンク
マドリーの人気間取り4,800プランを接客・提案に活用できる営業支援ツール
- 競合他社と差がつく、スピード提案
- トレンド間取りで、集客・受注数UP
- 建築家のアイデアを参考に、質の高い提案ができる
