完全同居二世帯住宅の間取り一覧
家族や自分の”好き”を叶える注文住宅の間取りが見つかる!暮らしの要望をもとに全国の建築家が作成した完全同居二世帯住宅の間取りを102件公開しています。毎日更新中!
-
- 35坪
- 4LDK
全室南向きで明るいプライベート空間、行き止まりなくサクサク動ける平屋の二世帯住宅
-
- 38坪
- 3LDK
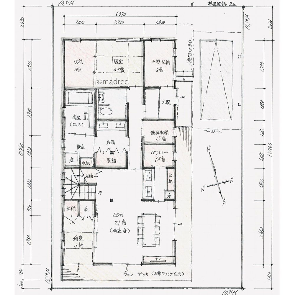
家族が増えても安心の収納量、義母との生活を見据えた同居予定の二世帯住宅
-
- 27坪〜30坪
- 4LDK
適材適所の収納とシンプル動線で、ゆったりと心地良く過ごす二世帯住宅
-
- 36坪
- 2LDK
1階はにぎやか2階はのんびり、それぞれが自分時間を過ごせる二世帯住宅
-
- 45坪
- 3LDK
どこからも利用しやすい建物中心の水廻り動線、大人数でも快適に過ごせる二世帯住宅
-
- 45坪
- 3LDK
玄関直結パントリーでサッと片付く、セカンドライフ見据えた1階生活完結型の二世帯住宅
-
- 39坪
- 5LDK
水廻りとファミクロをぐるっと回って朝支度、どの部屋にも陽が入る平屋の二世帯住宅
-
- 41坪
- 4LDK
家族それぞれの望みを叶えた個室と、互いの生活スタイルを尊重した二世帯住宅
-
- 42坪
- 5LDK
自分時間はパーソナルスペースで、お互いが気を使わない距離で生活を楽しむ二世帯住宅
-
- 52坪
- 5LDK
家族の気配を感じる程の距離感が心地良い、生活音を気にせず自由気ままに暮らす二世帯住宅
-
- 59坪
- 5LDK
緑豊かな庭で季節の移ろい感じる、凸凹変形地をうまく活用した二世帯住宅
-
- 69坪
- 6LDK
各階ともに造作棚でオシャレに魅せる、廊下を省いたコンパクト動線の2.5世帯住宅
-
- 41坪
- 4LDK
縦長地を生かした奥行きある眺望、余裕ある広さで介護もしやすい同居予定の二世帯住宅
-
- 32坪
- 4LDK
リビング横の小上がりも気持ち良い、公園と面する眺望を生かした二世帯住宅
-
- 36坪
- 3LDK
玄関に続く発想自由な収納スペース、たくさんのアウトドア用品も土間でスッキリ整う二世帯住宅
-
- 38坪
- 5LDK
エアコンがなくても風通し良好、アルコーブでのプライベート時間を楽しむ二世帯住宅
-
- 50坪以上
- 5LDK
屋根の掛かる広々テラスで、天候を気にせずゆったり過ごす平屋の二世帯住宅
-
- 32坪
- 3LDK
シャンプー後はデッキで日向ぼっこ、庭にすぐ出られる愛犬に優しい二世帯住宅
-
- 49坪
- 5LDK
リゾート感あふれる開放的な庭でリフレッシュ、将来同居を見据えた二世帯住宅
-
- 38坪
- 3LDK
愛犬と一緒にアウトドア楽しむ、将来同居を見据えた二世帯住宅
-
- 36坪
- 4LDK
隣が公園のロケーションを活かし、景色を楽しむ同居予定の二世帯住宅
-
- 38坪
- 3LDK
太陽の光と空気をたっぷり浴びる、緑に囲まれたアウトドア派の二世帯住宅
-
- 56坪
- 畳コーナー
適度な距離感で心地よく過ごす、介護しやすい回遊動線の二世帯住宅
-
- 32坪
- 3LDK
外の空気を吸ってリフレッシュ、介助動線を確保した二世帯住宅
マドリー開発の『住宅営業支援ツール』
madreeデータバンク
マドリーの人気間取り4,800プランを接客・提案に活用できる営業支援ツール
- 競合他社と差がつく、スピード提案
- トレンド間取りで、集客・受注数UP
- 建築家のアイデアを参考に、質の高い提案ができる
