北道路の間取り一覧
家族や自分の”好き”を叶える注文住宅の間取りが見つかる!暮らしの要望をもとに全国の建築家が作成した北道路の間取りを716件公開しています。毎日更新中!
-
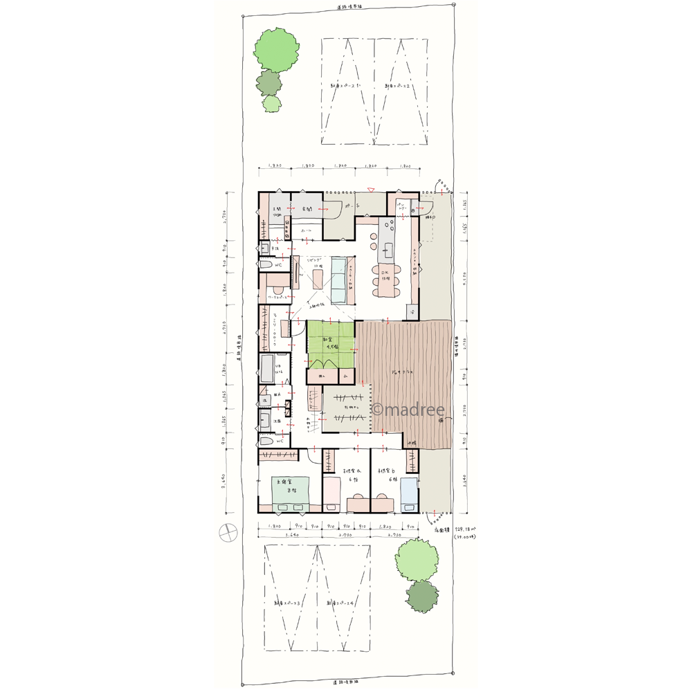
- 66坪
- 6LDK
庭と繋がる広々LDKで、家族の気配感じる家
-
- 31坪
- 3LDK
家族が自然と集うLDK、全居室明るい平屋
-
- 33坪
- 4LDK
縦長の土地を一工夫、陽当たり良く子育てしやすい家
-
- 25坪
- 3LDK
日当たり良いLDKで家族団欒、子どもと伸び伸び暮らす平屋
-
- 31坪
- 4LDK
家事効率の良い、独立型キッチンの平屋
-
- 39坪
- 6LDK
中心のLDKで家族集う、異なる生活時間に配慮した平屋
-
- 40坪
- 4LDK
変形地を有効活用、複数リビングで愉しい平屋
-
- 42坪
- 5LDK
機能的なサニタリースペースで自宅サロン併用の家
-
- 33坪
- 4LDK
便利な回遊動線で、たっぷり収納の平屋
-
- 27坪
- 3LDK
母子のコミュニケーションが増える、充実したLDKの平屋
-
- 46坪
- 4LDK
全室日当たり良好、天井高く開放的な平屋
-
- 31坪
- 4LDK
採光良いL型間取りで、家族がリビングに集まる平屋
-
- 30坪
- 2LDK
夫婦二人でゆっくり過ごす平屋の家
-
- 39坪
- 4LDK
コの字型でプライバシー確保、ウッドデッキと繋がる平屋
-
- 33坪
- 4LDK
まとまった家事動線で、自然と触れ合う家
-
- 36坪
- 3LDK
プライバシーに配慮した、家族が居心地良く過ごせる平屋
-
- 30坪
- 3LDK
無駄のない家事動線、子どもは庭で虫とりできる平屋
-
- 52坪
- 4LDK
便利な生活動線、南側に開けたビルトインガレージのある家
-
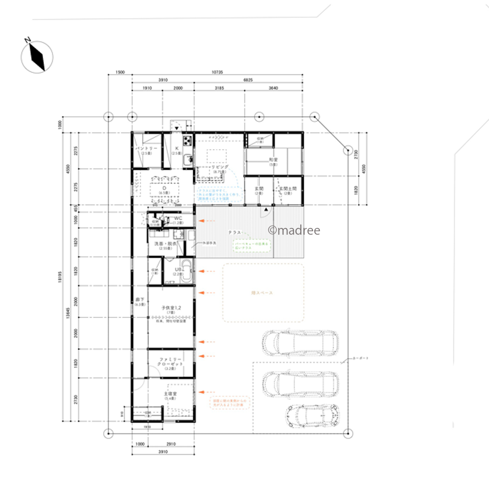
- 29坪
- 5LDK
2階はプライベート空間、LDKに家族が集う家
-
- 38坪
- 4LDK
広い庭とテラスに囲まれた開放感ある家
マドリー開発の『住宅営業支援ツール』
madreeデータバンク
マドリーの人気間取り4,800プランを接客・提案に活用できる営業支援ツール
- 競合他社と差がつく、スピード提案
- トレンド間取りで、集客・受注数UP
- 建築家のアイデアを参考に、質の高い提案ができる
