中庭の間取り一覧
家族や自分の”好き”を叶える注文住宅の間取りが見つかる!暮らしの要望をもとに全国の建築家が作成した中庭の間取りを201件公開しています。毎日更新中!
-
- 24坪
- パントリー
季節の庭で四季移ろいを楽しむ、カーテンなしで過ごすロの字型コートハウス
-
- 53坪
- 4LDK
気軽に交流できる距離感、お互いのプライベートを大切に過ごす二世帯住宅
-
- 35坪
- 2LDK
吹抜と繋がるセカンドリビングで、週末は友人と趣味の時間を楽しむ家
-
- 40坪
- 3LDK
屋外にいながら自由な自分時間を過ごせる、中庭を建物で囲んだロの字型の平屋
-
- 40坪
- 3LDK
2つのテラスでON/OFFが充実、プライバシーと開放感を両立したコの字型の家
-
- 42坪
- 4LDK
密集地でも明るく風が通り抜ける、プライベート充実の2世帯見据えた家
-
- 35坪
- 3LDK
片付けが習慣化する収納アクセス、中庭を囲むほぼ平家のような家
-
- 42坪
- 4LDK
キッチン周辺に家事動線を集約、有意義な休日過ごすプライベート中庭ある家
-
- 50坪以上
- 4LDK
生活音とプライベートに配慮した空間分け、中庭で繋がりを持つ二世帯住宅
-
- 32坪
- 1LDK
在宅ワークのモチベーションUP!三角地に建つ1人暮らしのための平屋
-
- 40坪
- 3LDK
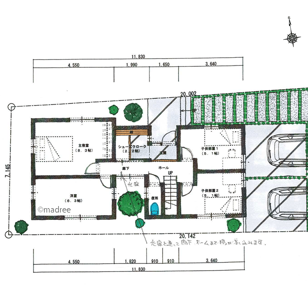
1階完結の生活動線で老後まで快適、プライベートな光庭テラスへ風の抜ける家
-
- 58坪
- 6LDK
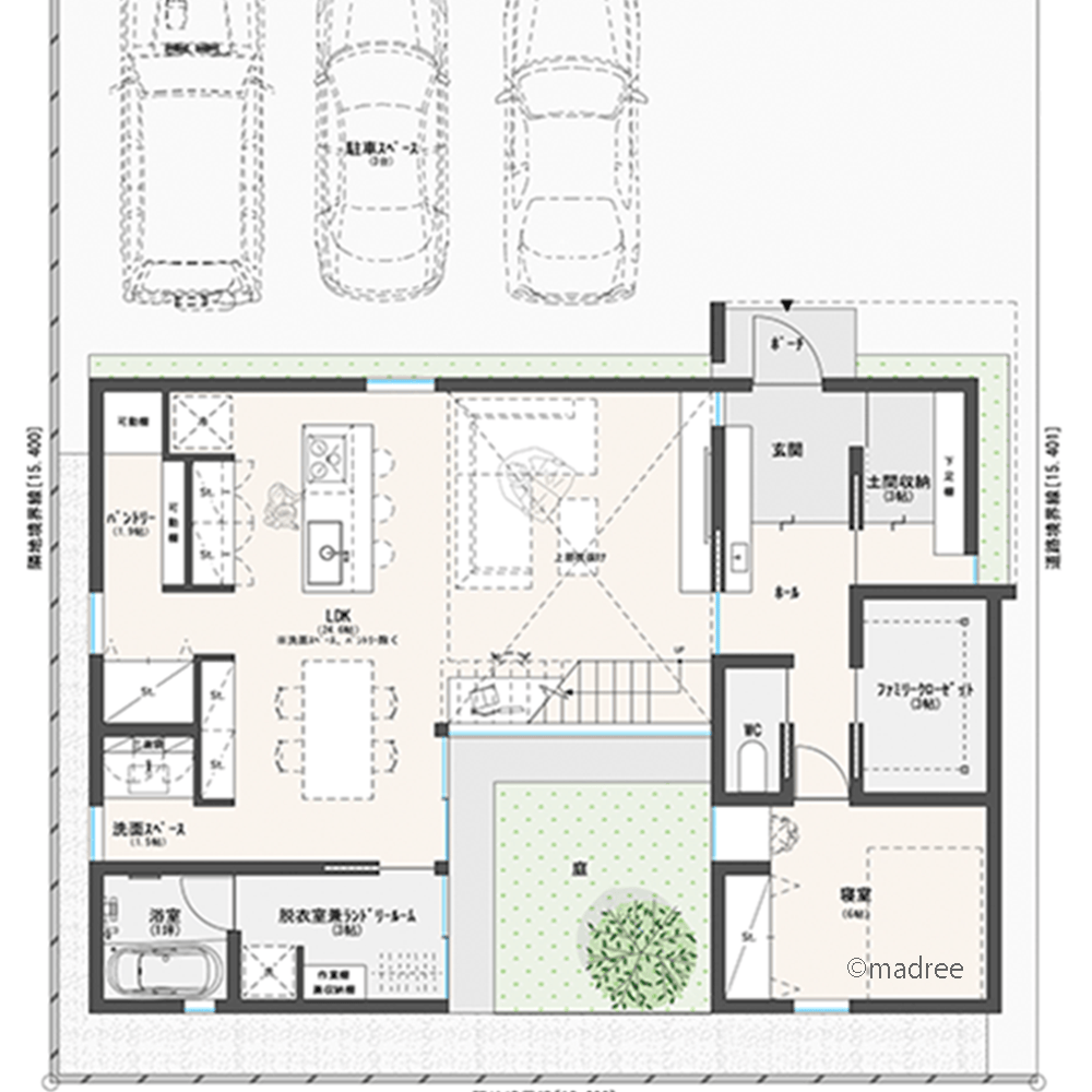
回遊動線で家事時間を短縮!開放的な自分時間を過ごせる平屋風暮らしの家
-
- 59坪
- 3LDK
南向きサンルームで一年中快適、花粉も梅雨も気にせず洗濯できる三階建ての家
-
- 42坪
- 4LDK
勾配天井からの光で明るいLDK空間、中庭を挟んで生活を分けた平屋のように暮らす家
-
- 50坪以上
- 3LDK
水廻りとファミクロを一体化、光と風の抜ける多目的な洗濯空間のある家
-
- 39坪~42坪
- 2LDK
コの字で囲むプライベートな中庭テラスで、隣家を気にせず週末BBQを楽しむ家
-
- 40坪
- 3LDK
桜並木と中庭の風景取り込む、大窓から光溢れるカフェライクな家
-
- 38坪
- 2LDK
中庭デッキからの採光抜群、コの字の建物から桜並木のロケーションを楽しむ家
-
- 53坪
- 4LDK
互いのプライバシーとライフスタイルを尊重、コの字の距離感が程良い二世帯住宅
-
- 39坪
- 2LDK
L字型LDKが囲むプライベードデッキで、眺望を活かしたお花見やBBQを楽しめる家
-
- 53坪
- 2LDK
縦にも屋外にも繋がる広々大空間、自然と家族を近くに感じる一体感LDKの家
-
- 42坪
- 3LDK
2階LDKと一体の少し篭れる出勤スペース、中庭の窓越しに家族を感じる仕事場のある家
-
- 27坪
- 3LDK
細長い土地を玄関中心にゾーン分け、全個室に朝日の届く自然な目覚めが得られる平屋
-
- 4LDK
脱衣室からウォークスルーでバルコニー、陽だまり2階ランドリーで毎日が楽家事の家
マドリー開発の『住宅営業支援ツール』
madreeデータバンク
マドリーの人気間取り4,800プランを接客・提案に活用できる営業支援ツール
- 競合他社と差がつく、スピード提案
- トレンド間取りで、集客・受注数UP
- 建築家のアイデアを参考に、質の高い提案ができる
