36坪~39坪の間取り一覧
家族や自分の”好き”を叶える注文住宅の間取りが見つかる!暮らしの要望をもとに全国の建築家が作成した36坪~39坪の間取りを306件公開しています。毎日更新中!
-
- 38坪
- 6LDK
クローズ外構で気兼ねなく家族時間、吹抜と蔵のある片流れ屋根の平屋
-
- 37坪
- 4LDK
自立を促し家事負担を軽減、繋がる動線でサポートしやすい二世帯住宅
-
- 39坪
- 4LDK
キッチンを中心にぐるっと回遊家事、変形地を生かした明るい二世帯住宅
-
- 38坪
- 3LDK
明るいLDKで運気を呼び込む、将来的に2世帯住宅を見据えた家
-
- 37坪
- 3LDK
玄関前ファミクロを中心に3つの動線が交わる、移動に無駄のない家事楽な家
-
- 36坪
- 3LDK
家族時間を大切に育む、開口窓と吹抜でタテヨコ空間広がる家
-
- 36坪
- 4LDK
一人ひとり好きなことをして過ごせる、家族がなんとなく集まる陽だまりリビングの家
-
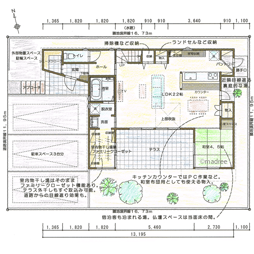
- 39坪
- 3LDK
まわりからの視線を気にせず、広いLDKとテラスでのびのび過ごす家
-
- 38坪
- 2LDK
中庭デッキからの採光抜群、コの字の建物から桜並木のロケーションを楽しむ家
-
- 36坪
- 2LDK
帰宅後はすぐに手洗いうがい!家族も来客も利用しやすい家事楽な水廻り動線の家
-
- 38坪
- 2LDK
コミュニケーションを取りやすい空間の繋がり、キッチンから安心して家族を見守る家
-
- 37坪
- 3LDK
ウォークスルー収納が居住空間を繋ぐ、家族それぞれにパーソナルスペースのある平屋
-
- 36坪
- 4LDK
たっぷり収納で空間も心もスッキリ、家族が集まる明るい2階リビングの家
-
- 40坪
- 3LDK
大きな吹抜で日中明るいLDKと、趣味に囲まれた心温まる家
-
- 36坪
- 2LDK
家族の中にもOFFの時間を大切に、夫婦でのんびり過ごせるプライベートデッキのある家
-
- 34坪
- 2LDK
テラスまで一体感のある広々空間、リビング中心に回遊しながら家事動線の繋がる家
-
- 39坪
- 3LDK
扉ひとつで間仕切る癒しスペース、離れのように過ごすサブリビングのある平屋
-
- 39坪
- 3LDK
タイルデッキで家族団らんの休日を、生活動線を意識した片付く家
-
- 39坪
- 3LDK
夫婦の個々時間も尊重しつつ、家族の会話弾むアイランドキッチン中心の平屋
-
- 38坪
- 4LDK
家族の時間も個々の時間も充実、外空間楽しむ来客ウェルカムな二世帯住宅
-
- 39坪
- 4LDK
キッチン前の目隠しスペースでスッキリ!大人と子どが異なるリビングで自由に過ごす家
-
- 38坪
- 4LDK
犬アレルギーの子どもと愛犬の共存生活、庭の緑を感じるLDKと犬部屋のある二世帯住宅
-
- 37坪
- 3LDK
おもちゃを隠してLDKをスッキリ保つ、階段下にスキップフロアの秘密基地がある家
-
- 36坪
- 2LDK
通り道の収納が楽家事のポイント、キッチンを中心に無駄なくサッと整う平屋
マドリー開発の『住宅営業支援ツール』
madreeデータバンク
マドリーの人気間取り4,800プランを接客・提案に活用できる営業支援ツール
- 競合他社と差がつく、スピード提案
- トレンド間取りで、集客・受注数UP
- 建築家のアイデアを参考に、質の高い提案ができる
