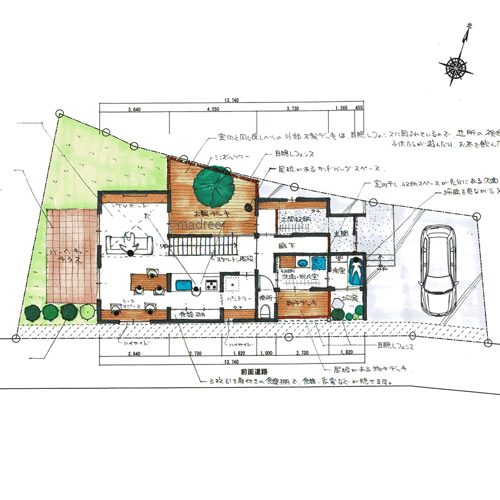
中庭の間取り一覧
家族や自分の”好き”を叶える注文住宅の間取りが見つかる!暮らしの要望をもとに全国の建築家が作成した中庭の間取りを201件公開しています。毎日更新中!
-
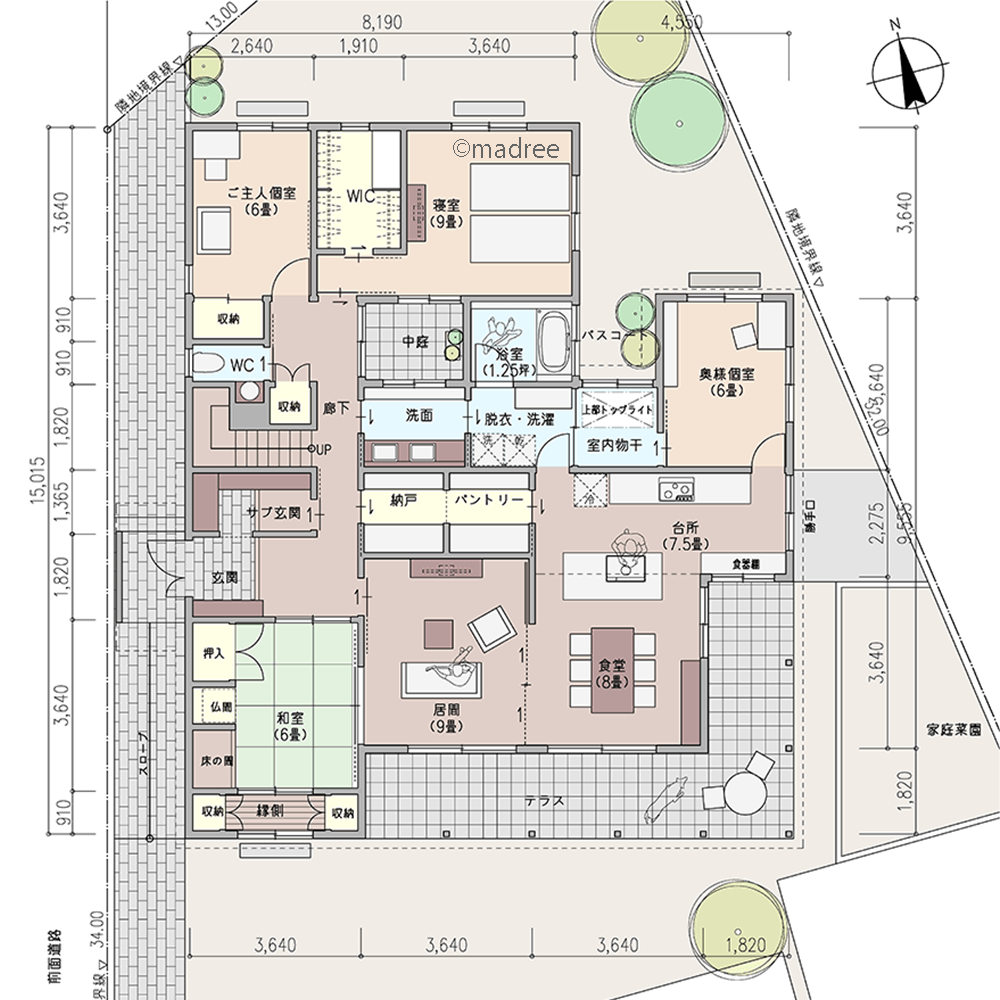
- 41坪
- 3LDK
傾斜な土地を生かした視線対策、LDKからプライベート感のある中庭テラスに繋がる家
-
- 31坪
- 3LDK
家族をつなげる中庭が憩いの場となる、老後まで安心して暮らせる1階完結の家
-
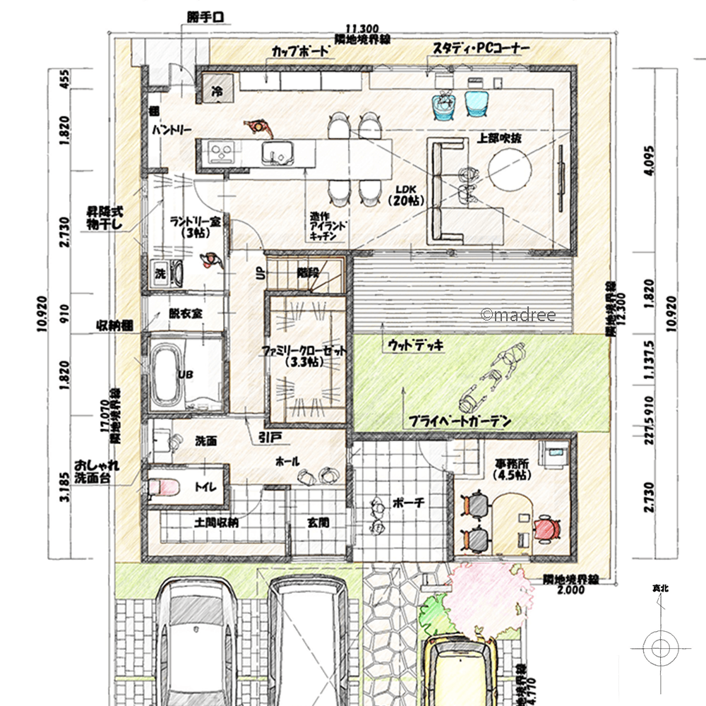
- 36坪
- 3LDK
大きな吹抜と大窓で縦横に空間広がる、光と風が心地良い在宅ワーカーの家
-
- 41坪
- 3LDK
庭に面するL字型デッキで屋内外を自由に回遊、奥行きあるLDKと南北の借景が繋がる平屋
-
- 42坪
- 2LDK
緑に向かって広がる伸びやかな眺望、リビングを中心に採光デッキを囲むコートハウス
-
- 42坪
- 3LDK
近隣を気にしない採光プライベート空間、パティオの開放感を家中で感じられる家
-
- 33坪
- 2LDK
光溢れるLDKから中庭デッキへ広がる眺望、四季の移ろいを楽しむ憩いの場がある家
-
- 39坪
- 3LDK
家のどこからでも自然を感じる、コの字の建物に囲まれたプライベート中庭のある家
-
- 35坪
- 3LDK
プライベート空間を隔てるホール扉で、家族も来客も安心して過ごせる事務所併設の注文住宅
-
- 32坪
- 2LDK
開口窓から採光デッキへ広がる一体感、ゆったりとした空間で老後を快適に過ごす平屋
-
- 50坪以上
- 5LDK
犬用動線で屋内外を自由にドッグラン、人にも犬にもパーソナル空間のある家
-
- 25坪
- 2LDK
リフォームを視野に広さを確保、水廻りを集約したコンパクト家事動線の平屋
-
- 38坪
- 4LDK
中庭につづく土間と吹抜が開放感生み出す、おしゃれに魅せる上手な空間使いの家
-
- 35坪
- 5LDK
中庭と吹抜で視線が広がる、外部の視線を遮りつつも開放感のある家
-
- 43坪
- パントリー
光庭テラスに面した生活空間、吹抜から各世帯の気配感じる二世帯住宅
-
- 42坪
- 5LDK
リビングから視線が抜ける中庭と、食事楽しむプライベート庭のある家
-
- 66坪
- 6LDK
吹抜と窓越しにお互いを感じる、2階中央に半個室のコートヤードがある家
-
- 48坪
- 4LDK
視界広がる中庭と吹抜で家族つながる、にぎやかな声が響く遊びのある家
-
- 50坪以上
- 6LDK
老後はイキイキ趣味を楽しむ、気兼ねせず過ごすパーソナル空間のある家
-
- 73坪
- 納戸
気楽に行き来できる良い距離感、明るい日差しと海風を感じられる二世帯住宅
-
- 38坪
- 5LDK
縦横広がる大空間リビングで家族憩う、隣家の視線カットしたコの字の家
-
- 36坪
- 3LDK
生活動線上にある憩いの場、ガラス窓の向こうに家族の気配を感じられる平屋
-
- 37坪
- 3LDK
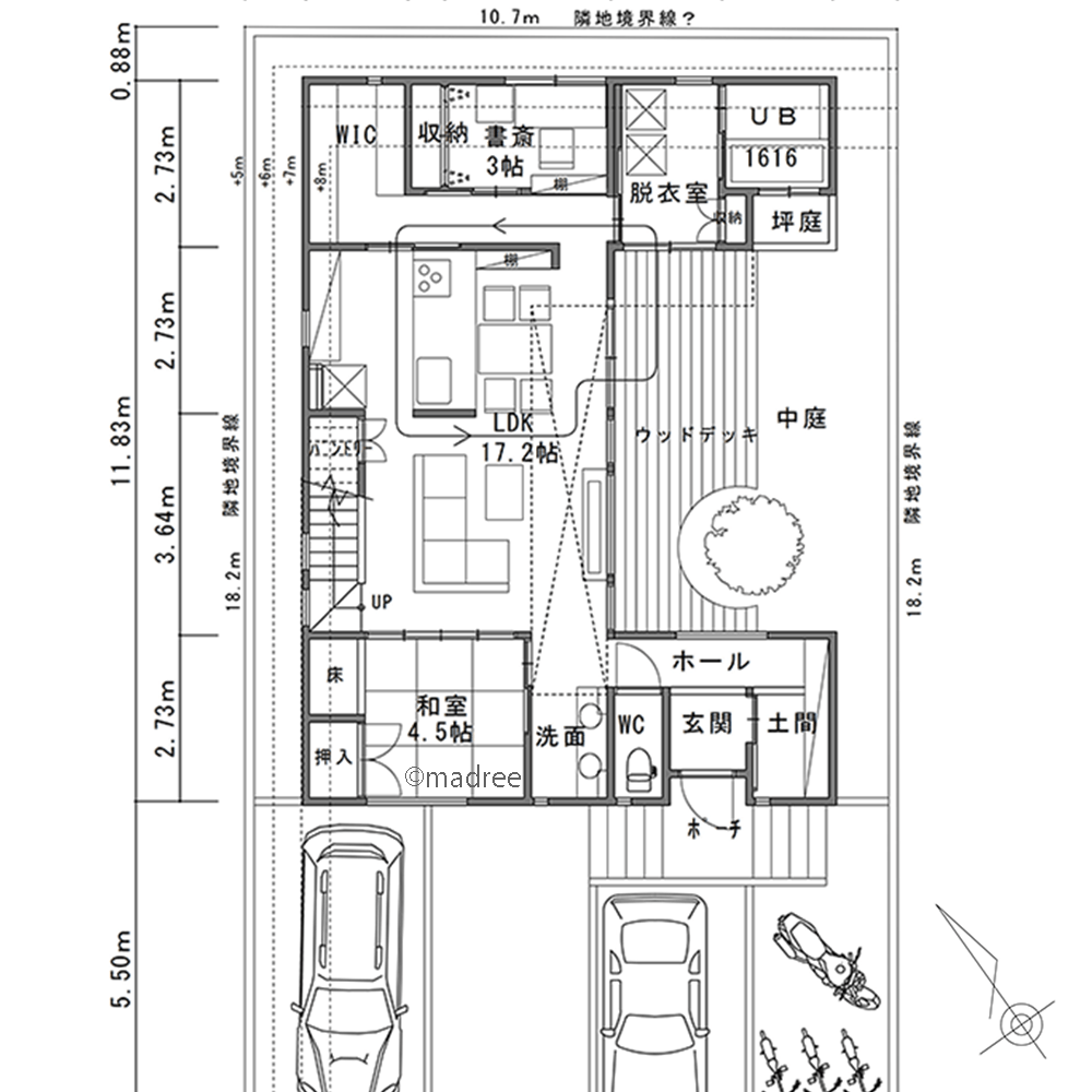
中庭で明るさとプライバシーを確保、隣家の視線カットした平屋
-
- 39坪
- 3LDK
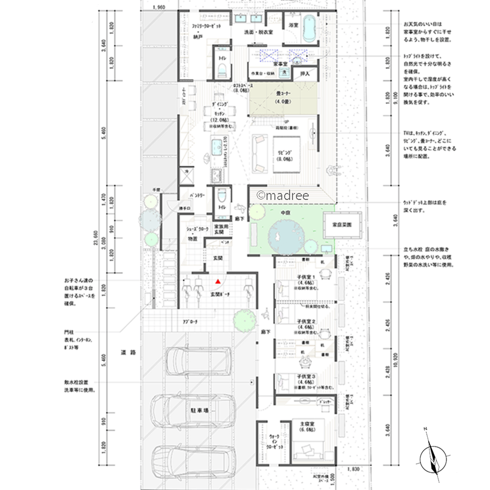
家事シェアしやすいコンパクト動線、中庭とトップライトで明るい縦長平屋
マドリー開発の『住宅営業支援ツール』
madreeデータバンク
マドリーの人気間取り4,800プランを接客・提案に活用できる営業支援ツール
- 競合他社と差がつく、スピード提案
- トレンド間取りで、集客・受注数UP
- 建築家のアイデアを参考に、質の高い提案ができる
